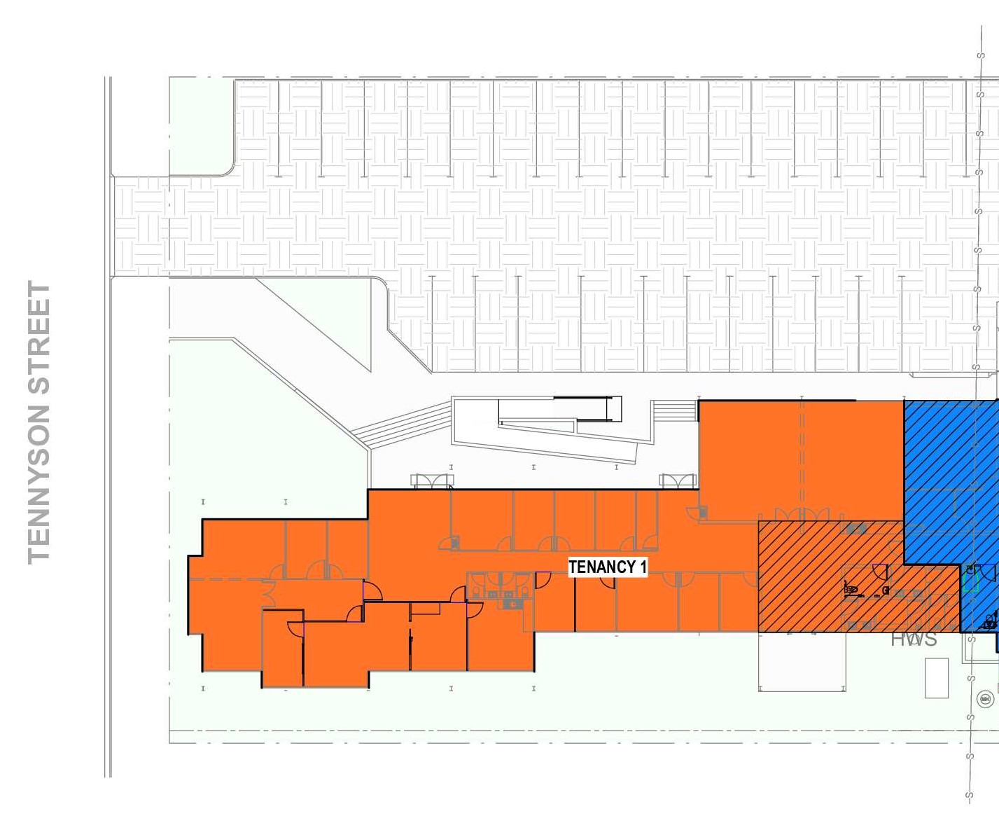
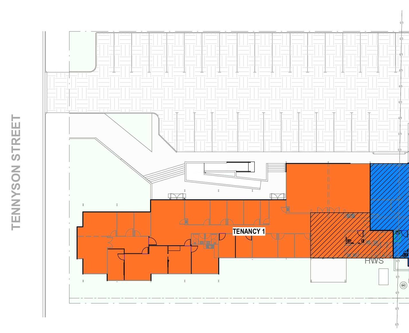
Gardian are pleased to present two flexible A Grade quality office leases located near Mackay's CBD.
With ample onsite parking this property will provide your business with wheelchair accessibility and a quality fit-out.
Features:
- Total lettable area 414m2* for Tenancy 1
- Flexible lease options 234m2* & 180m2*
- Wheel chair access entrance and toilet
- A grade fit out with 2 lease options
- Ample onsite parking
- Large breakout areas & disability access
- Multiple Kitchen and toilet facilities.
Chris Bonanno at Gardian Commercial Real Estate for an inspection.
Phone: 040877588
Email: chris@gardian.com.au
*Approximate and subject to confirmation by survey.
Disclaimer: The Agent does not give any warranty as to errors or omissions, if any, in these particulars. The provided information from the Vendor can be deemed reliable but not accurate. Any persons interested in the property should conduct their own research.
1 November 2025
Land Size 2,023 Square Mtr
